Fireproof Glass Partition with Door -Buring Inspection
You are here: One Stop Solution » News » Company News » Fireproof Glass Partition with Door -Buring Inspection

Fireproof Glass Partition with Door -Buring Inspection

Views: 4     Author: Site Editor     Publish Time: 2024-03-14      Origin: Site

Fireproof Glass Partition with Door -Buring Inspection

Fire-resistant glass burning inspection refers to sending the fire-resistant glass to be inspected to relevant professional national institutions for standardized process inspection, which is also type inspection. Fireproof glass inspection is usually divided into factory inspection (size, appearance, transmittance inspection) and type inspection. Type inspection generally refers to the burning inspection of fireproof glass.


Why does fireproof glass need to be burned? Because this is determined by its functional properties. Fire-resistant glass can be processed into fire-resistant windows, fire-resistant glass doors, fire-resistant glass partitions, smoke-proof hanging walls, etc. It is used in the construction of fire-resistant zoning in public, commercial, and civil buildings. It is an essential fire-fighting facility in modern building construction. Fire-resistant glass is a major component of doors, windows, partitions, smoke-shielding walls, etc. Its required fire-resistant performance must comply with national standards before it can be processed into other products. Only after it is qualified can it be sold in the market.



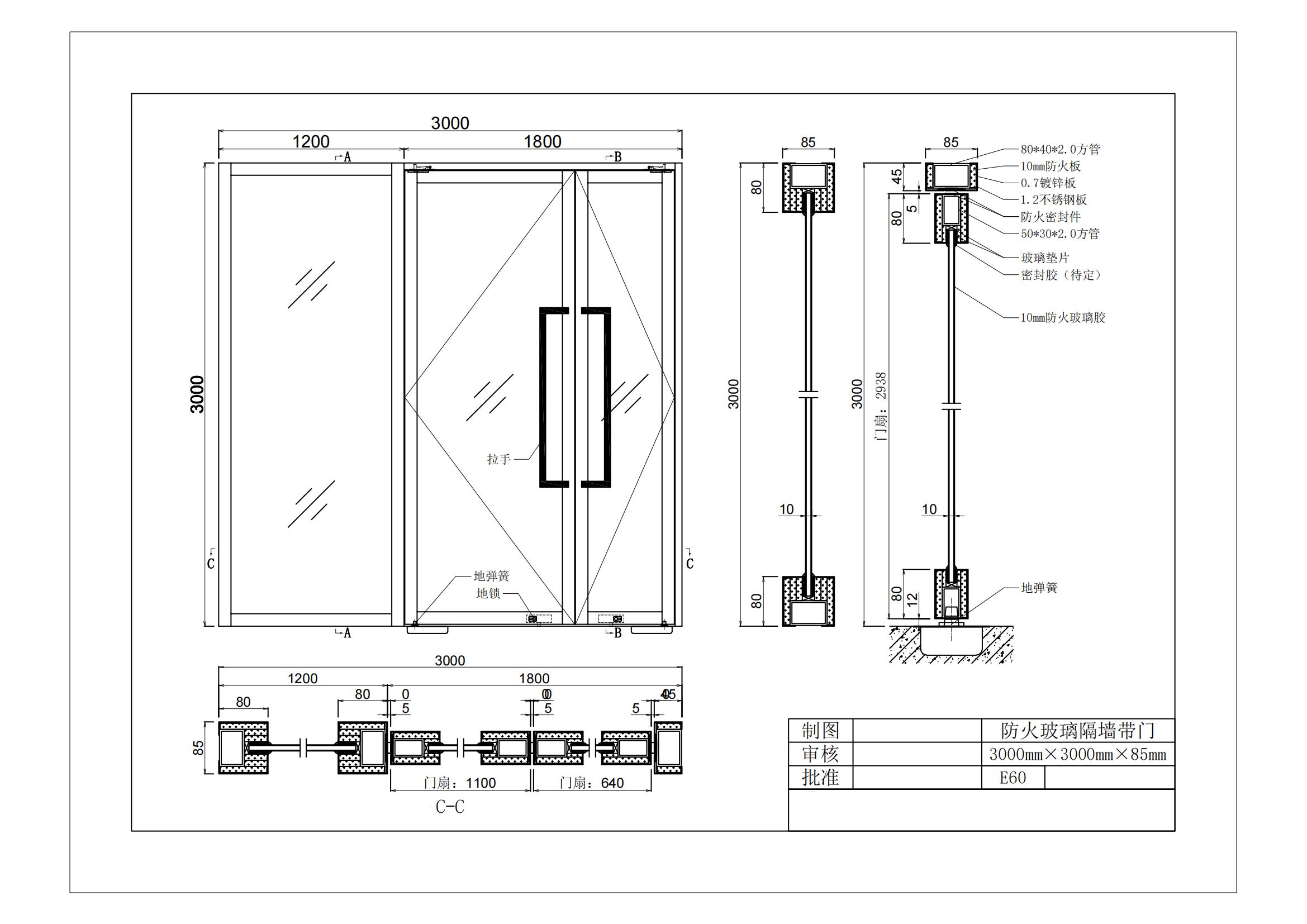
Our company conducted a fire inspection of fireproof glass partition walls and doors in 2023. From sample production to installation and burning inspection, everything successfully passed the inspection.


HB-23052601a Model (1)(1)_00






Test content:

Sample project: Fire-resistant glass partition wall with door

Detection fire protection time: E60 1 hour

Detection size: 3000mmx3000mmx85mm

Test content standard: EN 1634-1:2014+A1:2018










Leave a Message
Contact Us