جدار تقسيم النار مع باب إلى تايلاند
أنت هنا: وقفة واحدة حل » أخبار » أحدث الأخبار » جدار تقسيم النار مع باب إلى تايلاند

جدار تقسيم النار مع باب إلى تايلاند

تصفح الكمية:0     الكاتب:محرر الموقع     نشر الوقت: 2022-06-29      المنشأ:محرر الموقع

جدار تقسيم النار مع باب إلى تايلاند

نريد اليوم مشاركة أحد مشروعنا الذي ينطلق من تايلاند.


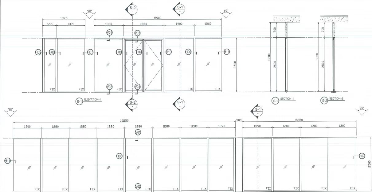
حصلنا على التحقيق في 21شارعفي اليوم الأول ، يمنحنا عملائنا فقط الرسم أدناه ويطلب منا تقديم بعض الاقتراحات ، نقترح أنه يمكننا استخدام 15 ممزجاج السيليكون الكريستاليويمكن أن يكون الإطارالصلب المجلفنمعالألومنيومالكسوة.

6130E8FD6D72E9C32C3544A1C7B4567


العينة كما هو موضح أدناه ، نرسل إلى عملائنا للتحقق ، وتحدثوا بشكل كبير عن بنائنا وجودة منتجاتنا ، لذلك اتخذوا قرارًا بالتعاون مع شركتنا.

2AB7865839998E03650FEE8D3C07AA6


مهلة زمنيةنا هي 30 يومًا ، قدم عميلنا الطلب في 8العاشرمايو ، وقالوا إن هذا المشروع عاجل للغاية ، آمل أن نتمكن من إنهاءه في أقرب وقت ممكن.


فيما يلي عملية إنتاجنا:

F6DD1A18B483C0403EAFDC01D90A105

059116AACBF5B204139F56C5314EDD1


نبدأ إنتاجنا في 8العاشرمايو ، انتهينا من الإنتاج على 2اختصار الثانيفي يونيو ، انتهينا من هذا المشروع قبل أسبوع مما كان متوقعًا. Bebel هو صور التحميل لدينا:

B6759646818AB178E63D6A8EF3EE4DD

E6516BC6378543D440F21BF7A115ADE

يستغرق الأمر حوالي 6 أيام إلى تايلاند ، وعملائنا يقومون بتثبيته في أقرب وقت ممكن. قالوا إن العمل معنا هو الأكثر إرضاءً التي قاموا بها على الإطلاق ، حيث أنقذناهم كثيرًا من الوقت.

فيما يلي الصور بعد التثبيت:

FA0784060173004F325EA35346E8CF01_H5E9728B6D7574D64BD82075E1F8A3D9FY

02DE1C22807062AC18A9C0D0D25F7DF4_H2F04C8134B7D44E3AC67AECDE783A441Z

إننا نشارك هذا إن لم يكن للدعاية فحسب ، بل نريد أيضًا أن نخبر جميع عملائنا أننا سنبذل قصارى جهدنا دائمًا لمساعدتك في كل المشكلة ، نحن شراكة ، نحن أيضًا صديقان.





ترك رسالة
اتصل بنا